Tolles Satteldachhaus mit Wintergarten-Eckerker und Balkon

SUNSHINE 125 V2

ab 339382 €

Keine Gewähr für Angaben, insbesondere Preise sind unverbindlich und direkt beim Hersteller zu überprüfen

Dieses Haus anfragen / Katalog anfordern Hausanbieter

Überblick

  • Haus SUNSHINE 125 V2
  • Hausserie SUNSHINE
  • Baustil Landhaus (klassisch)
  • Dach Satteldach
  • Bauweise Fertighaus, industrielle Vorfertigung
  • Bauart Holzhaus, Holztafelbau
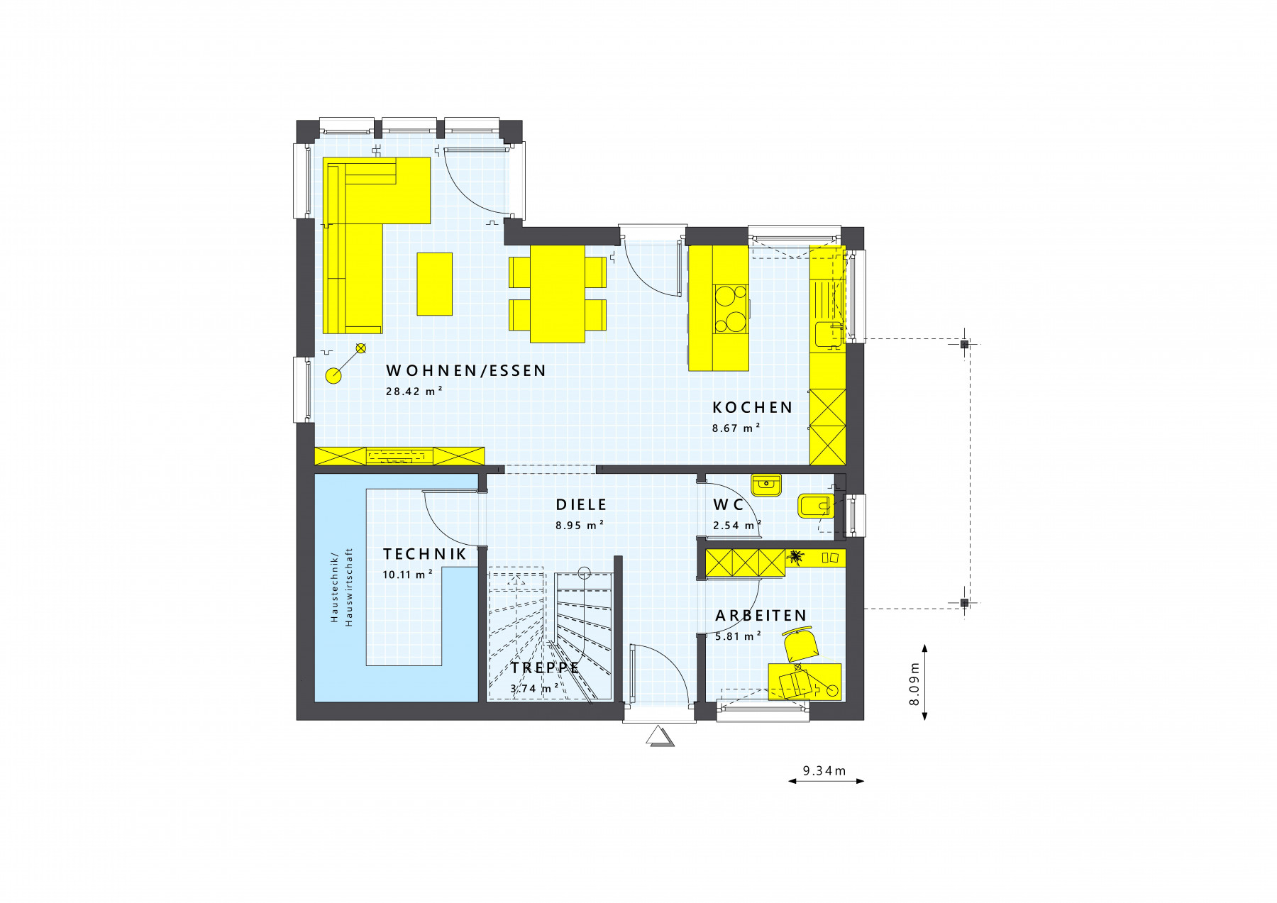
  • Maße 9,34m x 8,09m
  • Wohnfläche 125,13m²

Beschreibung

SUNSHINE 125 macht in verschiedenen Architekturvarianten vom pfiffigen Satteldachhaus bis zur zweigeschossigen Stadtvilla eine prima Figur. Im offenen Koch-Ess-Wohnbereich wird gelebt und gelacht – und ganz sicher fühlen sich hier auch deine Gäste rundherum wohl. Viel Freiraum für die persönliche Lebensart bietet in dem tollen Familienhaus auch das obere Geschoss. Die Eltern gönnen sich ein Schlafzimmer mit separater Ankleide und Wellness-Bad. Oder zwei Kinder genießen hier ihr eigenes Reich zum Spielen, Lernen und Schlafen. Bestimmt wird es dir gefallen, mit vielfältigen Architektur-Accessoires dein ganz persönliches Eigenheim zu gestalten.


Leb dich Haus!

 

Mit Living Haus machst du aus einem Eigenheim dein einzigartiges Wunsch-Zuhause. Denn du planst individuell, sodass alles perfekt für dich und deine Familie passt – dank unserer einzigartigen Serviceleistungen und den Experten aus dem Living Haus Team in deiner Nähe. Du denkst Fertighaus und fertig aus? Im Gegenteil! Haus von der Stange kennen wir nicht. Wenn du dein individuelles Zuhause, mit dem Plus an Schnelligkeit und Kosteneffizienz bauen möchtest, bist du bei Living Haus an der richtigen Adresse. Du hast die Auswahl aus über 750 Grundrissvarianten, die du mit viel Kreativität und einer ordentlichen Portion Selbermacherstolz zu deinem Eigenheim formst. Du baust das Fertighaus, genau wie du es willst! 

 

Das Zuhause-Paket direkt vor die Tür

Von Extrawünschen bis wunschlos glücklich: finde alles, was du für deinen Innenausbau brauchst, in der HausStatterei. Von der Fassadenfarbe über die Bodenfliesen bis hin zum Seifenspender in deinem Badezimmer. Du willst ausbauen, designen, gestalten? Kannst du! Realisiere deine Träume, mit dem Zuhause-Paket.

 

Ab in die App

Hausbau in digital? Aber klar. Dein Hausbauglück liegt in deiner Hand – wortwörtlich, mit dem Living Haus Bau-Cockpit auf deinem Smartphone. Dokumentenchaos war gestern, jetzt hast du alle relevanten Infos, Kontakte und Inspirationen immer auf dem Handy parat.

 

Koch vor Glück

Die Kirsche auf der Torte deines Eigenheims: Deine Traumküche ist im Hauspreis enthalten, inklusive individueller Planung, Beratung und hochwertigen Elektrogeräten. So passt alles perfekt zu deinem Grundriss – und deinen Wünschen und Bedürfnissen.

 

Hausbau it yourself

Werdet zu DIY King and Queen! Damit du weißt, wie man Hammer und Co. richtig schwingt, gibt’s unser DIY Ausbau-Coaching inklusive zu deinem Living Haus. Drei Tage mit einem Experten vor Ort, angepasst auf deinen Baufortschritt, mit den Gewerken deiner Wahl.

 

Darling, ein Darlehen für dich

Eine Million Ideen, doch keine Million auf dem Konto? Kein Problem, bei Living Haus bekommst du mehr finanziellen Spielraum. Unsere Finanzierungsexperten berate dich individuell zu Förderungen und Co., on top gibt’s das exklusive Zuhause-Darlehen.

 

Du willst dich individuell hausleben? Dann erfahre mehr auf livinghaus.de

Ausbaustufen

  • Schlüsselfertig

Preise

  • Schlüsselfertig ab 339382 € (ab Oberkante Fundament)
  • Der Preis bezieht sich auf den Standard-Leistungsumfang in der Ausbaustufe Ausbauhaus-Plus als Effizienzhaus 55 I-KON Standard inkl. Bodenplatte, Zuhause-Paket und Küche gemäß gültiger Bau- und Leistungsbeschreibung Stand 06/2024 und Preisliste 06/2024. Grundrisse und Abbildungen können Extras zeigen. Flächenangaben nach DIN 277.

Energie und Effizienz

Technik

  • Brennwertkessel
  • Solar
  • 3fach-Verglasung
  • Erdgas
  • Holz
  • Wärmepumpe Luft
  • Andere
  • Kamin
  • Wärmepumpe Wasser
  • Gasbrennwerttherme
  • Photovoltaikanlage
  • Wärmerückgewinnung

Bedarf

  • KfW-Effizienzhaus max 55

Baustile und Bauweise

  • Bautyp 1,5 - Geschosser
  • Baustil Landhaus, klassisch
  • Dachform Satteldach
  • Bauart Holzhaus, Holztafelbau
  • Bauweise Fertighaus, industrielle Vorfertigung
  • Planung Individuelle Neuplanung als Architektenhaus möglich.
    Individuelle Anpassungen nach Absprache möglich.
  • Zusätzliche Merkmale Einfamilienhaus,

Zimmer, Wohnfläche, Maße

  • Anzahl Zimmer Wohnzimmer + 4
  • Außenmaß Front 9,34 m
  • Außenmaß Seite 8,09 m
  • Wohnfläche nach DIN 125,13 m²

    Eine Anfrage stellen / Hausdetails anfordern


  • Sie können mit diesem Formular eine unverbindliche Anfrage an den Anbieter stellen.

  • Email-Adresse hat kein gültiges Format

  • Ich stimme zu, dass meine personenbezogenen Angaben zur Beantwortung meiner Anfrage erhoben und verarbeitet werden. Hinweis: Sie können Ihre Einwilligung jederzeit für die Zukunft per E-Mail an info@hausbau24.de widerrufen. Detaillierte Informationen zum Umgang mit Nutzerdaten finden Sie in unserer Datenschutzerklärung.

  • Zu viele Anfragen zu diesem Objekt gesendet. Anfrage wird an Server gesendet. Bitte warten... Daten erfolgreich gesendet. Fehler bei der Übermittlung der Daten.

  • *Bitte beachten Sie das Copyright und die Urheberrechte! Keine Rechtsberatung! Keine Steuerberatung!
    Keine Gewähr für Angaben, Preise sind unverbindlich und direkt beim Hersteller zu überprüfen.

 

« Zurück zur Übersicht